Skip links

"Vistas a la bahia"

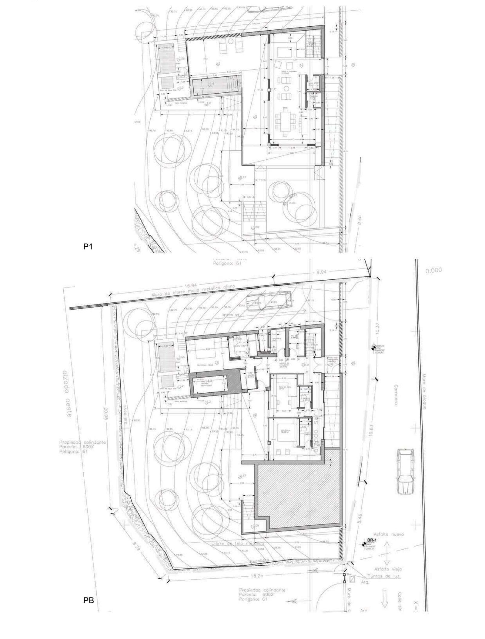
Se diseñan con precisión los espacios, las prestaciones, los materiales y las sensaciones que el cliente quiere
Aspectos muy importantes son las vistas de la casa hacia la bahía y mantenerse dentro de un presupuesto limitado. Se crea una expresión limpia y continua, pragmática y elegante, sin complicaciones en dimensiones o materiales, pero con una geometría y planificación adecuadas.
El resultado es una casa escultural y compacta, que se estira para mirar la bahía desde el punto más alto posible.
  • Categoria: Vivienda de Obra Nueva
  • Area: 190 m²
  • Estatus: En construcción
  • Ubicación: Sanjenjo, Galicia
This website uses cookies to improve your web experience.
Explore
Drag